
Mission Statement
To Transform the historical Horse Barn into an innovation space that is both welcoming and accessible to visitors of the University of Wisconsin-Madison as well as a desired place for students to learn and socialize.
Vision Statement
To create a space that emulates a feeling of belonging while fostering creativity and innovation. We will modernize the facility to meet the needs of residents and visitors while preserving the original elements of the building to maintain its historic beauty and integrity. ADA accessible elements, flexible classrooms, and a makerspace will be used to achieve this vision.
Concept Statement
The Elm is intended to be a space for students to collaborate, innovate, and learn while feeling welcomed by all. The space utilizes wood, leather, live plants, a water feature, as well as other natural materials in order to create a strong sense of biophilic design and to make the user feel as though they are within an elm tree. The usage of plants and a water feature allow the space not only visual relief but also auditory. The contrast between the dark wood tones and the calming green tone give the user creates a sense of structure to the space. Opening the first floor all the way to the fourth also allows for movement, as the user can see other users walking through the hallways and utilizing the other spaces in the building. All around, the space is calming and a quick relief from the hustle and bustle of day to day life.
Project Goals
Create Welcoming Spaces
Design a space that encourages a sense of community and provides a safe retreat to people of all backgrounds and beliefs.
Preserve Historical Integrity
Maintain and preserve the story of the Horse Barn by restoring historical design elements including the exterior gables and original wood trusses.
Represent the Philosophy of SoHE
Honor SoHE’s commitment to sustainability and serve as an extension of space while creating an innovation hub that is unique to the Horse Barn.
Create a Universal Design
Convert this mid-19th century building into an updated facility equipped with ADA requirements and is accessible to all
Prioritize Sustainabillity
Repurpose existing elements in order to avoid excess waste. Specifying sustainable products and material whenever possible
Building History & Site Analysis

1868
The barn was built to house livestock and draft horses by William T. Fish & A.R. Moxley for ~$1800
1899
The “Farm Barn” was then rebuilt and expanded to draft horses on nearby fields by J.T.W Jennings
1971
The building was renamed to the “Horse Barn” and was the home of UW-Madison’s horse program
1995
The building had been used for UW-Madison’s sheep studies and was given a new shingle roof
2020
Currently being used for storage, the barn is in the making of becoming an innovation hub

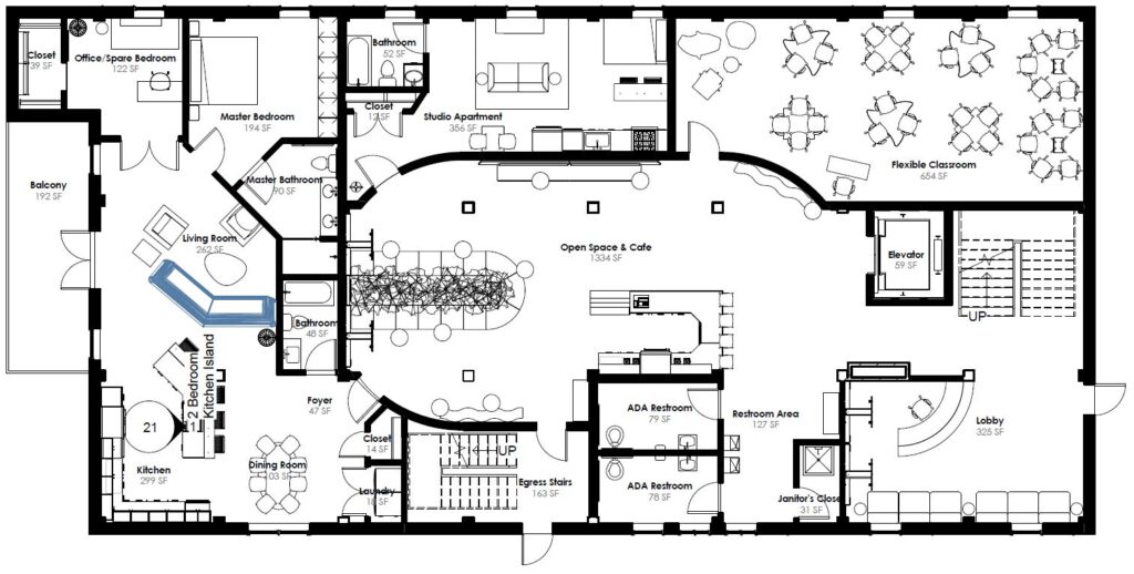
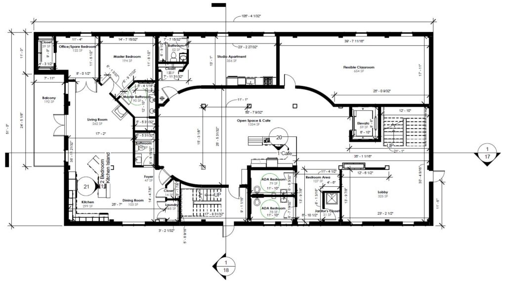
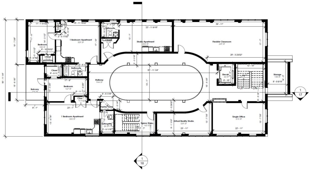
The Building
Square Footage: 4947 sqft
Overall Dimensions: 97’L x 51’W x 64’H
First Floor
Ceiling Height: 111″
Columns: 10″W x 10″D x 111″H
Main Entrance Doors: 106″H
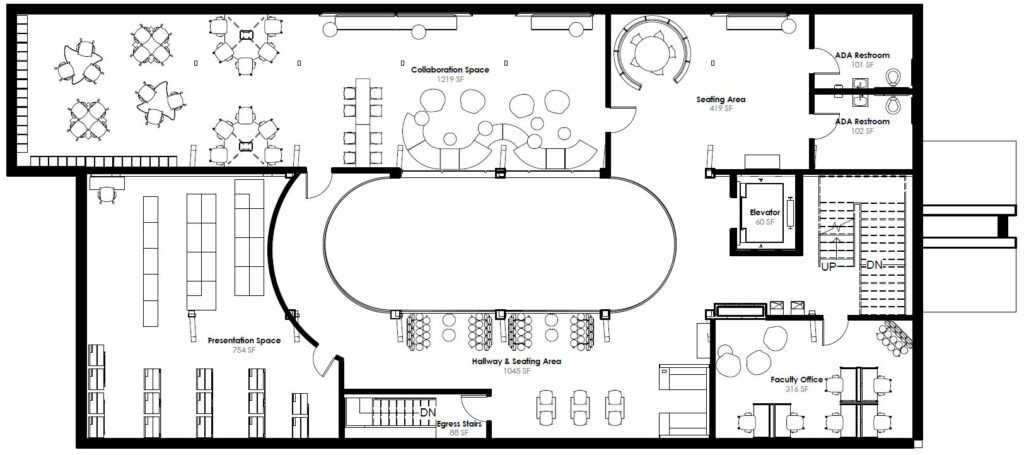
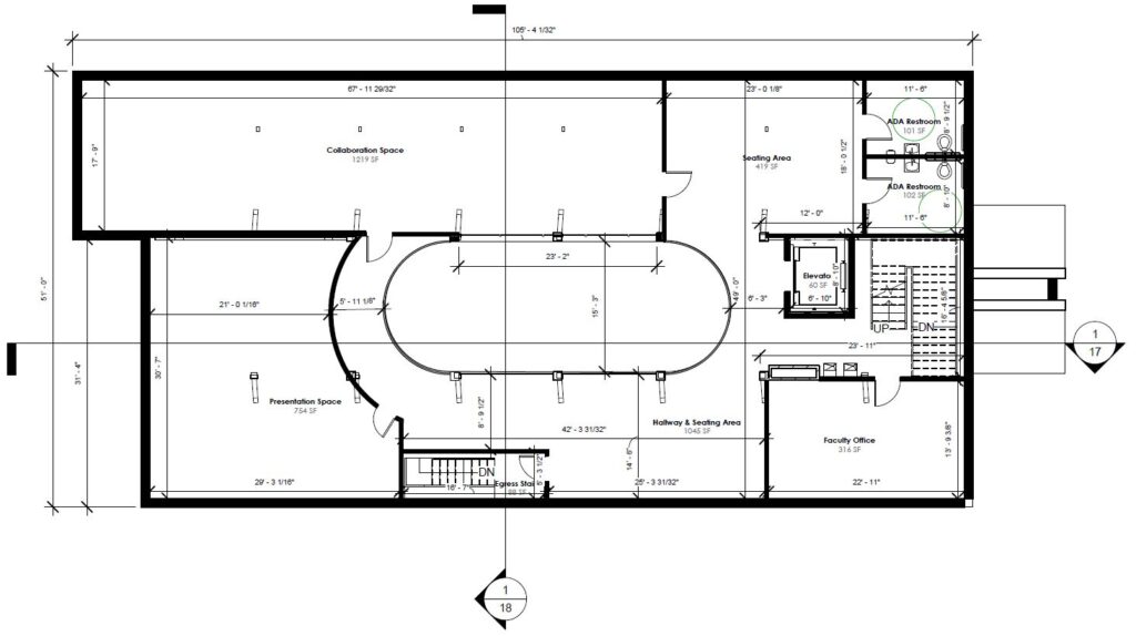
Second Floor
Typical Window: 32″W x 101″H
Double Windows: 26″W x 101″H
Ceiling Height: 108″H
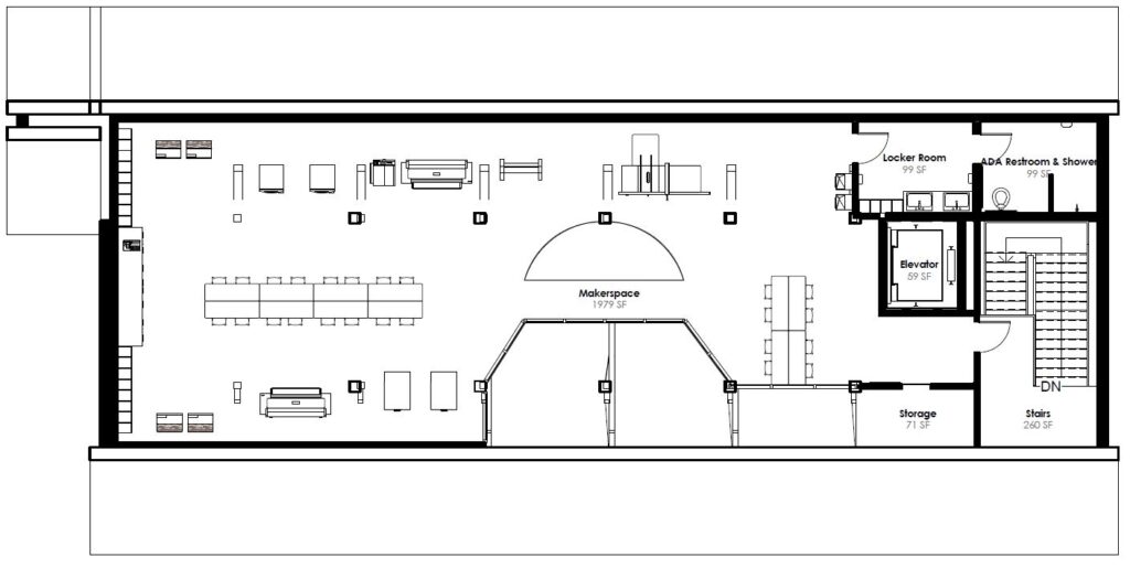
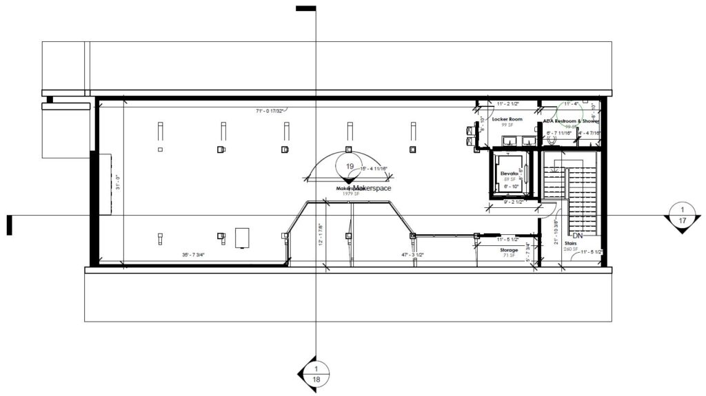
Third Floor
Front Windows: 60″W x 54″H
Ceiling Height: Highest at 35’H, Lowest at 4’H
Features

Dutch style gable
Pocket doors
Double hung cottage windows
Truss support structure
Wood frame
Intricate detailing
Columns
Beautiful historic detailing
Natural lighting
Original windows
Pocket doors maximize space
Not currently accessible
Secure feeling not yet established
Has sat vacant for years
Outdated HVAC system

Location – 520 Elm Drive, Madison, WI
The Horse Barn is located on the West side of the campus of University of Wisconsin-Madison and is centered within the university’s agricultural campus.
The Horse Barn is located near many parts of campus and most conveniently, is only an eight minute walk from the university’s School of Human Ecology.
Since Madison is such a large campus, most students and guests enjoy taking location transportation. The Horse Barn is a 16 minute bus ride to State Street and is near multiple bus stations.
It is also located a brief 20 minute bus ride to Wisconsin’s capitol building, a beautiful and historical building surrounded by restaurants and activity.

From the building, views of Lake Mendota can be seen through the beautiful double-hung cottage style windows on the second floor of the Horse Barn.
Adjacency Matrix

Bubble Diagram

Block Diagram



Inspiration Images




Inspiration Sketches






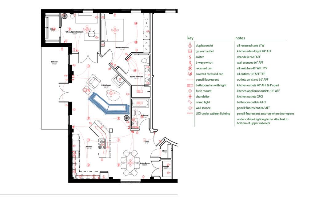
Furniture




Dimension




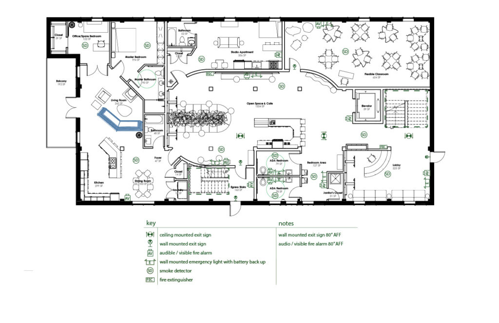
Electrical & Life Safety


Rendered




Lobby


Innovation Space


2-Bedroom Apartment


Cafe Elevation

Kitchen Elevations


Bathroom Elevation

2-Bedroom Apartment Selections & Schedule
Finishes

Code: P1
Item: Paint
Name: Cashmere Interior Acrylic Latex
Manufacturer: Sherwin Williams
Color: SW7518 Beach House
Notes: Eggshell Finish

Code: P2
Item: Paint
Name: Cashmere Interior Acrylic Latex
Manufacturer: Sherwin Williams
Color: SW6445 Garden Grove
Notes: Eggshell Finish

Code: W1
Item: Wood Flooring
Name: Premium Interior Wood Stain
Manufacturer: Varathane
Color: Dark Walnut
Notes: Reuse demo wood for flooring

Code: C1
Item: Cabinetry
Name: Cherry
Manufacturer: Wood Mode
Color: Cherry
Notes: Solid wood

Code: C2
Item: Cabinetry
Name: Laminate
Manufacturer: Wood Mode
Color: Textured Coffee Bean
Notes: For custom cabinets

Code: C3
Item: Cabinetry
Name: Laminate
Manufacturer: Wilsonart
Color: Nepal Teak
Notes: Softgrain Finish

Code: CT1
Item: Countertop
Name: Brittanicca Gold
Manufacturer: Cambria
Color: Brittanicca Gold
Notes: –

Code: CT2
Item: Bar countertop
Name: Cherry
Manufacturer: Wood Mode
Color: Cherry
Notes: Solid wood

Code: CT3
Item: Countertop
Name: MalvernManufacturer: Cambria
Color: Malvern
Notes: –

Code: CT2
Item: Countertop
Name: Ella
Manufacturer: Cambria
Color: Ella
Notes: –

Code: T1
Item: Backsplash/Tile
Name: Archaia Glazed Porcelain
Manufacturer: Daltile
Color: Relic White
Notes: Herringbone Mosaic

Code: T2
Item: Tile Flooring
Name: 337 Field Tile
Manufacturer: Oceanside Glass & Tile
Color: Equator Matte
Notes: Moisture Protected

Code: T3
Item: Wall Tile
Name: Overture Zoetic Satin Iridescent
Manufacturer: Oceanside Glass & Tile
Color: 043 Glass Tile
Notes: Moisture Protected

Code: T4
Item: Wall Tile
Name: Stacked Stone
Manufacturer: Daltile
Color: Tibetan Slate S317
Notes: Moisture protected

Code: T5
Item: Floor Tile
Name: Devotion
Manufacturer: Oceanside Gladd & Tile
Color: Gold
Notes: Moisture Protected

Code: WP1
Item: Wallpaper
Name: Priano Wallpaper
Manufacturer: Serena & Lily
Color: Green
Notes: Moisture Protected

Code: WP2
Item: Wallpaper
Name: Valley Wallpaper
Manufacturer: Serena & Lily
Color: Evergreen
Notes: Moisture Protected
Kitchen

Code: A1
Item: Refrigerator
Name: Classic French Door
Product #: BI-36UFD/S
Manufacturer: Sub Zero
Color: –
Price: $11,410
Notes: Local to Madison Area

Code: A2
Item: Downdraft
Name: Downdraft Ventilation
Product #: DD36
Manufacturer: Wolf
Color: –
Price: $1,720
Notes: Local to Madison Area

Code: A3
Item: Wall Oven
Name: M Series Built-In Single Oven
Product #: SO30CM/S
Manufacturer: Wolf
Color: –
Price: $5,860
Notes: Under microwave

Code: A4
Item: Cooktop
Name: Transitional Induction Cooktop
Product #: CI365T/S
Manufacturer: Wolf
Color: –
Price: $3,115
Notes: –

Code: A5
Item: Dishwasher
Name: Dishwasher – Panel Ready
Product #: DW2450
Manufacturer: Cove
Color: –
Price: $2,265
Notes: Refer to C1 for panel cover finish

Code: A6
Item: Microwave
Name: M Series Drop-Down Microwave
Product #: MDD30PM/S/PH
Manufacturer: Wolf
Color: –
Price: $2,315
Notes: Above oven

Code: F1
Item: Faucet
Name: Kitchen Sink Faucet
Product #: K-560-CP
Manufacturer: Kohler
Color: Oil Rubbed Bronze
Price: $329.70
Notes: –

Code: F2
Item: Sink
Name: Whitehaven Sink
ProduCT #: K-6426-0
Manufacturer: Kohler
Color: Sandbar
Price: $999
Notes: –

Code: F3
Item: Cabinet
Name: Tahoe Beaded
Product #: Option 52
Manufacturer: Wood Mode
Color: C1
Price: –
Notes: –

Code: F4
Item: Cabinet Knob
Name: Artifacts Cabinet Knob
Product #: K-72578-CP
Manufacturer: Kohler
Color: Oil Rubbed Bronze
Price: $12.30
Notes: –

Code: F5
Item: Cabinet Pull
Name: Devonshire 3″ Drawer Pull
Product #: K-10576-CP
Manufacturer: Kohler
Price: $13.13
Notes: –

Code: F6
Item: Bar Stools
Name: Woven Brown Leather Bar Stool
Product #: 466931
Manufacturer: CB2
Price: $499
Notes: –

Code: L1
Item: Ceiling Light
Name: Dune Reflection Retrofit LED
Product #: ELMP269210
Manufacturer: Element
Color: White
Price: $180
Notes: 6″ Recessed

Code: L2
Item: Under Cabinet Light
Name: 4U Series LED Under Cabinet
Product #: –
Manufacturer: Kichler
Color: Textured White
Price: $78.18
Notes: –

Code: L3
Item: Pendant Light
Name: Kurl
Product #: 634
Manufacturer: Beta
Color: Dark Walnut
Price: –
Notes: 72″ Radius
Living Room

Code: F7
Item: Sectional
Name: Thataway Angled Sectional Couch
Product #: TW1-ANGSEC-BC
Manufacturer: Blu Dot
Color: Tait Beach
Price: $2,559.20
Notes: –

Code: F8
Item: Lounge Chair
Name: Oran
Product #: ORA100
Manufacturer: Allermuir
Color: Leather, Tusk Grey
Price: –
Notes: Contains 22% recycled material

Code: F9
Item: Coffee Table
Name: Noguchi Table
Product #: IN52A247
Manufacturer: Herman Miller
Color: Walnut
Price: $1,595
Notes: –

Code: F10
Item: Side Table
Name: Custom Side Table
Product #: –
Manufacturer: Cambria
Color: Brittanicca Gold
Price: –
Notes: Custom

Code: F11
Item: Fireplace
Name: Custom Fireplace
Product #: –
Manufacturer: –
Color: White Concrete
Price: –
Notes: Custom

Code: F12
Item: Rug
Name: Disintegrated Green Floral Rug
Product #: 642885
Manufacturer: CB2
Color: Green
Price: $1,299
Notes: –

Code: L1
Item: Ceiling Light
Name: Dune Reflection Retrofit LED
Product #: ELMP269210
Manufacturer: Element
Color: White
Price: $180
Notes: 6″ Recessed

Code: L2
Item: Floor Lamp
Name: Atlas Wood Floor Lamp
Product #: 342550
Manufacturer: CB2
Color: Natural
Price: $349
Notes: White shade
Dining Room

Code: F13
Item: Dining Table
Name: Illyria Glass Oval Dining Table
Product #: –
Manufacturer: Limari Home
Color: Glass. / Walnut
Price: –
Notes: –

Code: F14
Item: Dining Chair
Name: Notch Wood Chair
Product #: 459782
Manufacturer: CB2
Color: Acacia Wood
Price: $329
Notes: –

Code: F15
Item: Rug
Name: Woven Cotton Rug
Product #: –
Manufacturer: Dash & Albert
Color: Marled Brown
Price: $258
Notes: –

Code: L5
Item: Chandelier
Name: Love One Another Pendant Light
Product #: 343235
Manufacturer: CB2
Color: Paper
Price: $249
Notes: –
Foyer & Laundry

Code: A7
Item: Washer
Name: Steam Cycle Front-Load Washer
Product #: WF45R6100AC
Manufacturer: Samsung
Color: Champagne
Price: $678
Notes: Energy Star

Code: A8
Item: Dryer
Name: Steam Cycle Gas Dryer
Product #: DVG45R6100C
Manufacturer: Samsung
Color: Champagne
Price: $778
Notes: –

Code: F16
Item: Rug
Name: Custom Sisal Rug
Product #: –
Manufacturer: West Elm
Color: Harvest
Price: $60
Notes: eco friendlly fiber

Code: F17
Item: Hanging Rod
Name: Ceiling Clothes Rack
Product #: –
Manufacturer: MetalWorksAT (Etsy)
Color: Semi-Matte Black
Price: $135.78
Notes: –

Code: F18
Item: Shelves
Name: Organic Edge Wood Wall Shelf
Product #: 527215
Manufacturer: World Market
Color: Walnut Brown
Price: $34.99
Notes: 3′

Code: L1
Item: Ceiling Light
Name: Dune Reflection Retrofit LED
Product #: ELMP269210
Manufacturer: Element
Color: White
Price: $180
Notes: 6″ Recessed

Code: L6
Item: Ceiling Light
Name: Slope Acacia Wood Flush Mount
Product #: 502575
Manufacturer: CB2
Color: Acacia Wood
Price: $129
Notes: Entry way
Master Bedroom

Code: F19
Item: Bed
Name: Holbrook Bed
Product #: –
Manufacturer: Brown Beam
Color: Smoked Oak
Price: $2,165
Notes: Local dealer in Madison

Code: F20
Item: Nightstand
Name: Holbrook Nightstand
Product #: –
Manufacturer: Brown Beam
Color: Natural
Price: $415
Notes: Local dealer in Madison

Code: F21
Item: California Closet
Name: Custom California Closet
Product #: –
Manufacturer: California Closets
Color: to match C1
Price: –
Notes: Custom to fit space and needs

Code: L1
Item: Ceiling Light
Name: Dune Reflection Retrofit LED
Product #: ELMP269210
Manufacturer: Element
Color: White
Price: $180
Notes: 6″ Recessed

Code: L7
Item: Chandelier
Name: VegaFlush Mount Light
Product #: 110743
Manufacturer: CB2
Color: Nickel
Price: $259
Notes: Above bed

Code: L8
Item: Table Lamp
Name: Atlas Natural Wood Table Lamp
Product #: 342794
Manufacturer: CB2
Color: Natural
Price: $169
Notes: White shade
Master Bathroom

Code: F22
Item: Cabinetry
Name: Vanguard Plus with Aluminum Band
Product #: 115
Manufacturer: Wood Mode
Color: C2
Price: –
Notes: Custom ADA Cabinets

Code: F23
Item: Cabinet Pull
Name: Bone Handle
Product #: 667468
Manufacturer: CB2
Color: Bone
Price: $18.95
Notes: 3″

Code: F24
Item: Mirror
Name: Pinto Acacia Round Mirror
Product #: 476084
Manufacturer: West Elm
Color: Acacia
Price: $199
Notes: 35″

Code: F25
Item: Sink
Name: Caxton Oval
Product #: K-2209-0
Manufacturer: Kohler
Color: White
Price: $121.60
Notes: 15″x12″ under mount

Code: F26
Item: Faucet
Name: Purist
Product #: K-14406-4-BGD
Manufacturer: Kohler
Color: Brushed Gold
Price: $825.80
Notes: –

Code: F27
Item: Shower Head
Name: Purist
Product #: K-978-BGD
Manufacturer: Kohler
Color: Brushed Gold
Price: $237.15
Notes: –

Code: F28
Item: Toilet
Name: Cimarron Comfort Height
Product #: K-3828-0
Manufacturer: Kohler
Color: White
Price: $768
Notes: Slow close seat

Code: L1
Item: Ceiling Light
Name: Dune Reflection Retrofit LED
Product #: ELMP269210
Manufacturer: Element
Color: White
Price: $180
Notes: 6″ Recessed

Code: L8
Item: Wall Sconce
Name: Stiae Ribbed Glass Wall Sconce
Product #: EL1411G
Manufacturer: Elco Lighting
Color: Copper
Price: $169
Notes: Next to mirrors

Code: L9
Item: Shower Light
Name: Shower Recessed
Product #: EL1411G
Manufacturer: Elco Lighting
Color: Copper
Price: $38.99
Notes: Water safe for in shower
Second Bedroom / Office

Code: F29
Item: Sofa Bed
Name: Lawndale Saddle Leather Daybed
Product #: 361861
Manufacturer: CB2
Color: Bello, Saddle
Price: $1,799
Notes: –

Code: F30
Item: Side Table
Name: Drop Low Cork Side Table Small
Product #: 420839
Manufacturer: CB2
Color: Black Cork
Price: $499
Notes: –

Code: F31
Item: Desk
Name: WorkUp Height-Adjustable Table
Product #: WU2272HF
Manufacturer: KI
Color: Brighton Walnut
Price: $2645
Notes: Sit to stand

Code: F32
Item: Desk Chair
Name: Venice Task/Office Chair
Product #: 394107
Manufacturer: CB2
Color: Carmen, Brown
Price: $299
Notes: –

Code: L1
Item: Ceiling Light
Name: Dune Reflection Retrofit LED
Product #: ELMP269210
Manufacturer: Element
Color: White
Price: $180
Notes: 6″ Recessed

Code: L4
Item: Floor Lamp
Name: Atlas Wood Floor Lamp
Product #: 342550
Manufacturer: CB2
Color: Natural
Price: $349
Notes: White shade
Full Bath

Code: F33
Item: Vanity Cabinetry
Name: Mezzo Wall Hung Cabinet
Product #: FCB8007TK
Manufacturer: Fresca
Color: C3
Price: –
Notes: –

Code: F34
Item: Cabinet Pull
Name: Margaux Pull
Product #: K-16263-AF
Manufacturer: Kohler
Color: Vibrant French Gold
Price: $49.70
Notes: –

Code: F35
Item: Mirror
Name: Bristol Mirror
Product #: MR110-01
Manufacturer: Serena & Lily
Color: Wooden & Brass
Price: $698
Notes: Above Sink

Code: F36
Item: Sink
Name: Verticyl Rectangle
Product #: K-2882-0
Manufacturer: Kohler
Color: White
Price: $183.20
Notes: Undermount

Code: F37
Item: Faucet
Name: Margaux Widespread Sink Faucet
Product #: K-16323-4-AF
Manufacturer: Kohler
Color: Vribrant French Gold
Price: $862.75
Notes: –

Code: F28
Item: Toilet
Name: Cimarron Comfort Height
Product #: K-3828-0
Manufacturer: Kohler
Color: White
Price: $768
Notes: Slow close seat

Code: F38
Item: Shower & Tub Filler
Name: Margaux Bath and Shower Valve
Product #: K-TKS16225-3-AF
Manufacturer: Kohler
Color: Vibrant French Gold
Price: $639.40
Notes: –

Code: F39
Item: Tub/Shower
Name: Archer Alcove Bath
Product #: K-1946-RA-0
Manufacturer: Kohler
Color: White
Price: $978
Notes: 60″ x 30″

Code: L1
Item: Ceiling Light
Name: Dune Reflection Retrofit LED
Product #: ELMP269210
Manufacturer: Element
Color: White
Price: $180
Notes: 6″ Recessed

Code: L9
Item: Shower Light
Name: Shower Recessed
Product #: EL1411G
Manufacturer: Elco Lighting
Color: Copper
Price: $38.99
Notes: Water safe for in shower

Code: L10
Item: Wall Sconce
Name: Peel Brass Sconce
Product #: 473967
Manufacturer: CB2
Color: Brass
Price: $89.25
Notes: Center on sides of mirror
